FINALE
IMPECCABILE

Pavillon de la Dance

Ginevra - CH

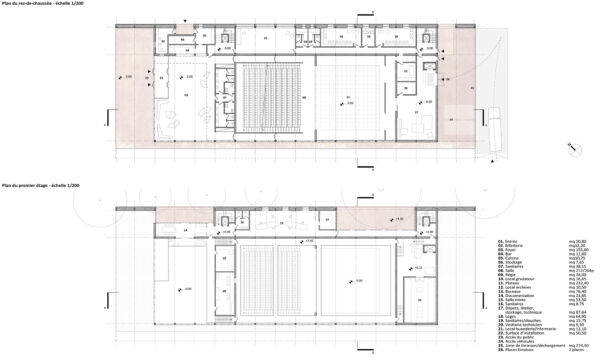
Il progetto diventa una continuazione dello spazio urbano esistente integrandosi con l’ambiente e risolvendo la complessità dell’area in cui è inserito. La volumetria dell’edificio è perfettamente coerente con la scala urbana circostante; abbiamo rispettato la rigida maglia dei lotti Sud-Ovest, proponendo queste misure nella dimensione della sala e nella riprogettazione della piazza con materiali naturali e specie arboree autoctone. L’area ha acquisito una nuova identità e conclude armoniosamente il tessuto urbano.

TEAM DI PROGETTOWisp Architects
Arch. Andrea Arlanch
TIPOLOGIAAccommodation – Competition
ANNO2013
DIMENSIONE2'300 m²
FASIConcept Design
PLUS DEL PROGETTOThe volumetry of the building is perfectly coherent with the surrounding urban scale
RENDERWOLF-VA

PROGETTI CORRELATI